物件詳細 一戸建 青森市
/ detailsDETAILS
一戸建 浜館4丁目 売家
情報更新日:2026-04-13
- 所在地
- 青森県 青森市 浜館4丁目1-76
- 価格
- 2,400万円
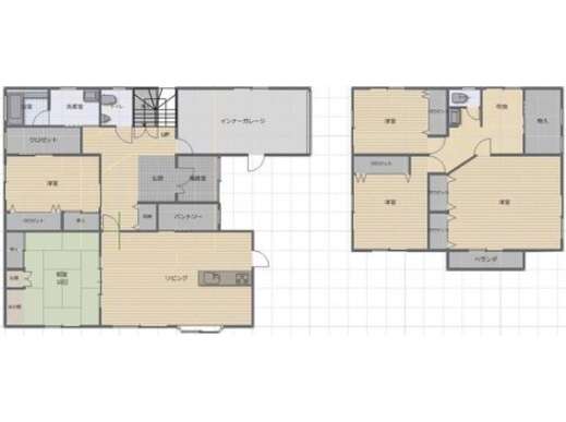
- 間取り
- 5SLDK
- 築年数
- 平成16年6月
- 建物延面積
- 222.64㎡
- 敷地面積
- 226.64㎡ (公簿)
本物件の内容や画像等は全て現況優先となります。
各画像は参考図となります。
| 交通機関 | 青い森鉄道 東青森駅徒歩・8分 | ||
|---|---|---|---|
| 学区 | |||
| 詳細間取 | 5SLDK (1階:洋1帖×1、1階:和1帖×1、2階:洋1帖×3、1階:LDK1帖、サービスルーム1帖) | ||
| 周辺施設 | |||
| 周辺環境 | その他費用 | ||
| 総戸数 | 建物構造 | 木造 | |
| 築年月 | 平成16年6月 | 主要採光方向 | 不明 |
| 駐車場 | 地勢 | 平坦 | |
| 駐車場複数台 | 不可 | 土地権利 | 所有権 |
| 用途地域 | 第一種住居 | 国土法届 | 不要 |
| 取引態様 | 仲介 | 現況 | 居住中 |
| 引渡 | 他 (相談) | 建ぺい率/容積率 | 60% / 200% |
| 地目 | 宅地 | 都市計画 | 市街化 |
| セットバック | 無 | 接道状況 | 一方(公道・北東側・間口15.2m・幅員6.5m) |
| 私道負担 | ─ / ─ | 建築確認番号 | |
| 法令上の制限 | |||
| 設備 | トイレ(洋式 独立 水洗) | ||
| 備考 | |||
| 取扱業者 |
まごころ不動産㈱ 青森県知事免許(01)第003674号 青森県青森市中央2-14-11 1階1号 TEL:017-718-4453 FAX:017-718-4453 (公社)全日本不動産協会会員 東北地区不動産公正取引協議会加盟事業者 |
||









